• 91视频网站免费,91视频直播APP,最新91视频观看,91视频下载黄色

    热门关键词: 91视频直播APP布图片  91视频直播APP膜图片  最新91视频观看

    防渗膜卷膜套管连接装置及其连接方法

    返回列表 来源:91视频直播APP膜91视频直播APP布供应商 浏览: 发布日期:2019-11-29 09:36:20【
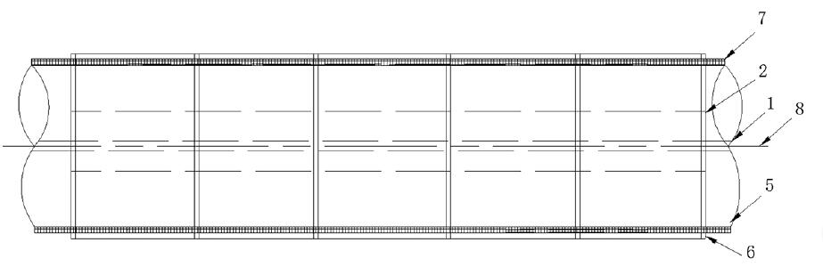
    为了解决当下工程建设中防渗膜连接方式的弊端,探讨如何加强连接部位的抗拉强度和防渗性能,本工程所用防渗膜采用了卷膜套管连接装置。由图1和图2可知,建筑基础防渗膜卷膜套管连接装置由内管5和外管6组成,内管5的管壁上沿纵向设有插口1,外管6的管壁上沿纵向设有卡口2,通过外管6将卷裹在内管5外侧的防渗膜卷层7套住并卡紧。内管5上的插口1的开口宽度与卷头8的两膜厚度一致,卡口2的宽度不宜设置较宽,通常为1cm~2cm。防渗膜卷层7的厚度与内外管之间的环隙一致,以保证密实牢固。内管5的材质可选择金属管材(钢管、铝管等)或硬质PPR管材(PPR
    热水管、冷水管、铝塑管等)。本工程考虑经济实用性,内管5选用了PPR热水管,外管6为PPR冷水管。
    防渗膜卷膜套管连接装置及其连接方法
    防渗膜卷膜套管连接装置及其连接方法
    清理防渗膜两膜连接部位,去除接缝范围内膜上水泥浆、砂粒、泥土和污垢等,保证膜面清洁无尘土;对防渗膜一和防渗膜二的连接部位清理并检查合格后,将两膜连接边3和4进行贴合、对齐,形成卷头8;将卷头8,即需要连接的两膜中3和4的连接边,从内管5上插口1的一端共同插入内管5中,然后连同两膜一起卷动内管5,紧卷一圈或多圈,使两膜中3和4卷裹于内管5外侧形成防渗膜卷层7;通过外管6上的卡口2将内管5及卷裹于其外侧的防渗膜卷层7一起套住,继续旋紧防渗膜卷层7,以填充密实内管5和外管6之间的环空间隙,使两部分防渗膜的3和4紧密地连接在一起;
    上述4个步骤完成后即完成了一段新新膜或新旧膜之间的连接,重复上述步骤,逐段对两防渗膜进行连接,连接时应使相邻两段内管之间及外管之间逐一靠紧,防止分段部位出现薄弱点而造成渗漏通道。两部分防渗膜连接完成后,将其连接部分布设于预留膜下砂浆槽中,然后进行膜上砂浆铺设和混凝土预制板的衬砌,彻底解决连接部位抗拉强度不足易渗漏的问题。膜上砂浆铺设时应布满预留坑槽。

    同类文章排行

    最新资讯文章

  • 首页
  • 电话
  • QQ
  • 联系
  • 网站地图